Tipos de Escadas em Projetos de Segurança Contra Incêndio e Pânico
Entenda os diferentes tipos de escadas utilizadas em projetos de segurança contra incêndio e pânico, conforme a IT-08 do Corpo de Bombeiros de Minas Gerais. Este guia técnico aborda as exigências para escadas enclausuradas, à prova de fumaça, pressurizadas, externas e de acesso restrito, destacando critérios como material, resistência ao fogo, ventilação e aplicação por tipo de ocupação. Essencial para engenheiros, arquitetos e responsáveis técnicos que buscam conformidade normativa e segurança efetiva nas edificações.
4 min read
A segurança contra incêndio e pânico em edificações é um dos pilares dos projetos de prevenção. Entre os elementos mais críticos nesse sistema estão as escadas de emergência, essenciais para o abandono seguro da edificação e para o acesso das equipes de resgate.
Em Minas Gerais, a Instrução Técnica n.º 08 (IT-08) do Corpo de Bombeiros Militar de Minas Gerais (CBMMG) padroniza os critérios para o dimensionamento, execução e análise das saídas de emergência, incluindo os diversos tipos de escadas previstas em projetos de incêndio.
Escadas de Emergência: Função e Requisitos Gerais
Todas as escadas de emergência devem atender a critérios técnicos obrigatórios, independentemente do tipo. Esses requisitos garantem desempenho adequado em situações críticas:
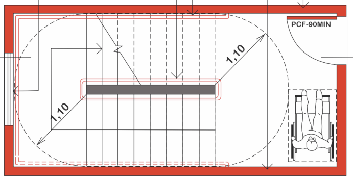
Material Incombustível: Estrutura e compartimentação devem ser construídas com materiais incombustíveis, com Tempo Requerido de Resistência ao Fogo (TRRF) conforme a IT-06 (mínimo de 120 min para escadas metálicas).
Corrimãos e Guarda-Corpos: Corrimãos contínuos em ambos os lados, entre 80 e 92 cm de altura. Guarda-corpos com altura mínima de 1,05 m em patamares e 92 cm em escadas internas.
Desobstrução: As escadas devem permanecer livres de objetos ou obstruções.
Pisos Antiderrapantes: Os pisos devem garantir aderência permanente.
Pé-direito Mínimo: Deve ser de, no mínimo, 2,0 m.
Largura: Dimensionada conforme a população. Em geral, mínimo de 1,10 m (pode variar conforme a ocupação).
Degraus e Patamares: Altura entre 16 e 18 cm, largura calculada pela fórmula de Blondel. Lanço máximo de 3,70 m.
Proibição de Outras Funções: Escadas não devem conter aberturas para sistemas prediais, como dutos de lixo ou armários de gás (com exceções em escadas não enclausuradas de até 12 m).
Tipos de Escadas de Emergência segundo a IT-08/CBMMG
1. Escada de Acesso Restrito
Utilizada para mezaninos ou áreas privativas com até 20 pessoas.
Formato: Pode ser em espiral, leque ou lanços retos.
Altura Máxima: 3,70 m.
Largura Mínima: 80 cm.
Corrimão: Obrigatório apenas em um lado, se a largura for ≤ 1,10 m.
Degraus: Em leque ou espiral, a parte estreita pode ter no mínimo 7 cm.
Material: Pode ser construída com material combustível (exceção às demais escadas).
2. Escada Não Enclausurada (NE)
É a escada comum, sem compartimentação.
Aplicação: Permitida em edificações de até 12 m de altura.
Largura Mínima: 90 cm, quando atende até 50 pessoas.
Lanços Curvos: Permitidos, com exceção de ocupações do tipo F-3 (ex: ginásios), desde que tenham largura entre 1,10 m e 1,65 m.


3. Escada Enclausurada Protegida (EP)
Oferece maior resistência ao fogo e proteção contra fumaça.
Paredes: Resistência mínima de 2 horas ao fogo.
Portas: Corta-fogo (PCF) com TRRF de 60 min.
Ventilação Natural: Através de janelas com área mínima de 0,80 m² por pavimento (exceto na descarga).
Ventilação Inferior Permanente: Abertura com área ≥ 1,20 m² para entrada de ar externo.
Proibição de Lanços Mistos:


4. Escada Enclausurada à Prova de Fumaça (PF)
Alta proteção contra a propagação de fumaça.
Enclausuramento: Paredes com resistência de 4 horas ao fogo.
Acesso: Realizado por antecâmaras, varandas, balcões ou terraços.
Portas: PCF com resistência mínima de 60 minutos.
Antecâmaras: Devem ser ventiladas por dutos (entrada e saída), com dimensões e materiais específicos.
Distanciamento: As aberturas dessas antecâmaras devem manter distâncias seguras de aberturas vizinhas.


5. Escada à Prova de Fumaça Pressurizada (PFP)
Alternativa às escadas EP e PF, com ventilação mecânica.
Sistema de Pressurização: Cria diferencial de pressão, impedindo a entrada de fumaça.
Norma Aplicável: Deve atender à IT-10 – Pressurização de Escadas de Segurança.
Outros Requisitos: Os critérios de TRRF e compartimentação seguem o tipo que a PFP está substituindo.
6. Escada Aberta Externa (AE)
Instalada na fachada da edificação.
Substituição: Pode substituir EP ou PF em algumas situações.
Acesso: Porta PCF com resistência de 60 min.
Distanciamento: Deve estar a, no mínimo, 3 m de aberturas desprotegidas (edifícios até 12 m) ou 8 m (acima de 12 m).
Material: Estrutura em material incombustível com TRRF ≥ 2 horas.
Guarda-Corpo: Altura mínima de 1,30 m.
Limite de Altura: Permitida em edificações de até 30 m.


Considerações Finais: Qual Tipo de Escada Adotar?
A definição do tipo de escada de emergência deve considerar:
Grupo e divisão de ocupação;
Altura da edificação;
População a ser evacuada;
Distâncias de caminhamento máximas.
A Tabela 6 da IT-08 é essencial para essa definição, especificando os critérios mínimos para cada cenário.
Conformidade e Responsabilidade Técnica
É indispensável que engenheiros, arquitetos e responsáveis legais compreendam e apliquem corretamente os requisitos da IT-08. A adoção do tipo incorreto de escada pode comprometer não apenas a segurança da edificação, mas também a aprovação do projeto junto ao CBMMG.

